Overview
Exclusive opportunity to acquire a centrally located Burquitlam high- rise development site between Claremont Street and Gardena Drive in the heart of Coquitlam's Oakdale neighbourhood.
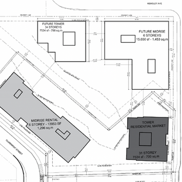
The 1.22 acre property is an assembly of 6 owner occupied single- family homes designated for up to 5.5 FSR (4.0 FSR condo + 1.5 FSR rental) with a potential total buildable area of over 292,859 square feet.
The site contains a watercourse along the north perimeter which cuts between Gardena and Claremont. With no height limit, the project will offer spectacular views of the surrounding region.
Property Details
Price
$20,000,000
Price/Buildable Sq Ft.
$94
Property Type
Residential Development Site
Lot Size
1.22 Acres
Zoning
RS-1
Land Use Designation
High density apartment residential
Location
The site is situated near the Burnaby- Coquitlam border in the rapidly growing Oakdale neighbourhood of Burquitlam. Perched at the top of the hill and next to Burnaby Mountain, Oakdale offers proximity to a fantastic array of amenities and a pristine natural environment.
The location provides immediate access to the trails and scenic views from Burnaby Mountain while still only being minutes from the ocean at Rocky Point and Burrard Inlet.
There are several retail nodes within immediate walking distance of the property, while Lougheed Mall, Coquitlam Centre and The Amazing Brentwood can be reached in minutes by Skytrain. The site also offers immediate access to the main arterial connections of Como Lake Avenue and Clarke Road with easy access to the Lougheed, Barnet and Trans- Canada highways within minutes.


For Sale - Oakdale High Rise Development Site
Claremont Street, Coquitlam, BC, Canada
Burquitlam - Oakdale





